Rijksstraatweg 180aLeersum

huurprijs € 1.795,- p.m.

Op begane grond en duurzaam wonen in Leersum?

Heerlijk en comfortabel wonen zonder zorgen nabij de bossen van het Utrechts Landschap. Dat kan!

Omschrijving

Dit recent opgeleverde appartement (2025) is onderdeel van een kleinschalig appartementencomplex, in totaal 5 appartementen met 5 garages en 7 parkeerplaatsen. Van origine een gebouw uit 1954, jarenlang in gebruik geweest als beddenwinkel met bovenwoning. Inmiddels professioneel getransformeerd naar 5 wooneenheden. Het gebouw is daarbij volledig gerenoveerd, geïsoleerd én verduurzaamd naar A+++!

Het appartement zelf beschikt over een ruime woonkamer, complete inbouwkeuken, fraaie badkamer en toilet, 1 slaapkamer met mogelijkheid tot 2 slaapkamers, vloerverwarming, dubbele openslaande deuren naar de tuin en een eigen garage + parkeerplaats!

KENMERKEN:
– Bouwjaar: 2025 / 1954
– Woonoppervlakte: circa 86 m²
– Garageoppervlakte: circa 21 m²
– Tuinoppervlakte: circa 56 m²
– Energielabel: A+++

INDELING:
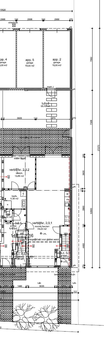
Appartement 2, begane grond: ENTREE, hal, woonkamer met zeer fraaie inbouwkeuken en openslaande deuren naar de tuin. Via de gang is de toegang naar het toilet en de badkamer, ingericht met inloopdouche, wastafel en wasmachineaansluiting. Vanuit de woonkamer en vanuit de badkamer is de hoofdslaapkamer te bereiken. Vanuit de woonkamer en vanuit de hoofdslaapkamer zijn er openslaande deuren naar de achtertuin van circa 56 m2 met zonnig terras. Aansluitend is de eigen garage middels loopdeur te bereiken, voorzien van dubbele garagedeuren en elektra. Achter de garage is een privé-parkeerplek aanwezig op het eigen terrein van het gebouw. De tuin en de garage hebben een achterom.
De woonkamer is zo royaal dat deze eventueel is op te delen door een 2e slaapkamer te creëren aan de voorzijde middels (glazen/vouw-/tussen)wand. Ook is er een eigen kelder aanwezig wat ingericht is als technische ruimte voor de warmtepompinstallatie. Op het dak van de garage zijn 6 zonnepanelen en een buitenunit van de warmtepomp voor het appartement geïnstalleerd.

INFORMATIE HUUR:
– Gelijkvloers wonen.
– Het huurcontract wordt opgemaakt voor de periode van minimaal 12 maanden, verlenging mogelijk.
– De huurprijs is voor het appartement, eigen garage en eigen parkeerplek. Er is eventueel de mogelijkheid een extra parkeerplek bij te huren voor € 25,- per maand.
– De huurprijs is exclusief elektra, water, servicekosten en gemeentelijke lasten voor de gebruiker.
– Servicekosten is voor onderhoud, tuinonderhoud en glazenbewassing € 25,- per maand.
– Waarborgsom 2 maanden huur.
– Inkomenseis minimaal 2,5x de bruto maandhuur (screening en identiteitscheck).
– Huisdieren en roken niet toegestaan.
– Uitsluitend eigen gebruik door huurder (max 2 personen).
– Ingangsdatum: zo spoedig mogelijk/per heden.
– Maten zijn indicatief.
– Voorbehoud gunning eigenaar.

Kenmerken

Overdracht

Statusbeschikbaar
Huurprijs€ 1.795,- per maand
Aanvaardingin overleg
Servicekosten€ 25,-

Bouwvorm

Soort objectappartement
Soort appartementbenedenwoning
Bouwjaar2025
Bouwvormnieuwbouw
Liggingin bosrijke omgeving

Indeling

Woonoppervlakte84 m²
Perceeloppervlakte843 m²
Gebouwgebonden buitenruimte56 m²
Externe bergruimte21 m²
Inhoud286 m³
Aantal kamers3
Aantal slaapkamers2
Aantal woonlagen1 woonlagen
Gelegen op1e woonlaag

Energie

EnergielabelA+++
Energielabel einddatum12-06-2035
Isolatievolledig geisoleerd
Warmwatercv ketel
Verwarmingvloerverwarming geheel, warmtepomp

Buitenruimte

Tuinachtertuin
Hoofdtuinachtertuin
Hoofdtuin oppervlakte56 m²
Ligging hoofdtuinnoordwest
Achteromja
Kwaliteit tuinverzorgd

Parkeergelegenheid

Garagevrijstaand steen, parkeerplaats, voor 2 auto
Parkeerfaciliteitenop eigen terrein
Totaal aantal garages1

Dak

Soort daksamengesteld dak

Overig

Permanente bewoningja
Onderhoud binnenuitstekend
Onderhoud buitenuitstekend
Huidig gebruikwoonruimte
Huidige bestemmingwoonruimte

Voorzieningen

Voorzieningenmechanische ventilatie, glasvezel kabel, zonnepanelen

Kadastrale gegevens

GemeenteLeersum
SectieC
Perceelnummer3007
Index1
Oppervlakte843 m²
Eigendomssituatievolle eigendom

Omgeving

Wij nodigen je graag uit voor een bezichtiging

Laat hieronder jouw gegevens achter en we nemen contact met je op om een afspraak te maken.