verkocht

Starters in Werkhoven opgelet!

Wil je graag je eigen koopappartement in Werkhoven? Dan is dit jouw kans!

Omschrijving

Midden in het charmante dorp Werkhoven wordt een kleinschalig nieuwbouwproject gerealiseerd: Nieuw Werchinge 2.0, waarvan 4 appartementen zijn gelegen op de eerste en tweede verdieping, voorzien van eigen dakterras, eigen berging en eigen parkeerplaats!
Op het perceel Dominee Hermanus Pollaan 1 in Werkhoven staat een gebouw met de naam ‘Nieuw Werchinge’ welke wordt gesloopt en plaatsmaakt voor Nieuw Werchinge 2.0! Een aantrekkelijke locatie met in totaal 6 duurzame appartementen, verdeeld over:
– 2 appartementen op de begane grond (levensloopbestendig)
– 4 maisonnettes verdeeld over de 1e en 2e verdieping (middels trap bereikbaar)

Alle woningen variëren in grootte van circa 63 tot 65 m² en beschikken over een eigen buitenruimte op het zuiden, een eigen berging van 5 m² en een eigen parkeerplaats!
Elke woning wordt opgeleverd met een energielabel A+++, wat staat voor een zeer energiezuinige woning met lage energielasten en een hoog wooncomfort. De woningen worden conform Woningborg gebouwd en afgeleverd inclusief sanitair en tegelwerk, exclusief keuken.

Indeling
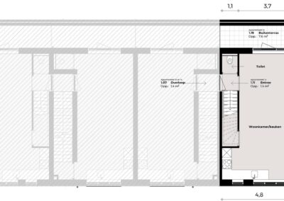
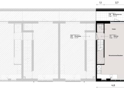
Via portiek vanaf de begane grond een gezamenlijke trap naar trap naar de eerste verdieping. Maisonnette appartement eerste verdieping: ENTREE, hal, toilet, woonkamer met open keuken en dakterras.
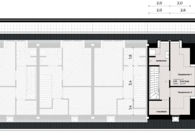
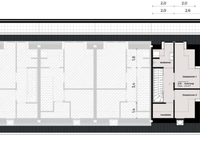
Vaste trap naar de tweede verdieping met 2 slaapkamers, een badkamer en een technische ruimte.

De doelgroep
In samenspraak met de gemeente is bepaald dat de appartementen in eerste plaats beschikbaar zijn voor gegadigde met een maatschappelijke binding met het dorp Werkhoven. Daarnaast is er bij de appartementen een anti-speculatiebeding en zelfbewoningsplicht van toepassing.
Er is sprake van een doelgroep met maatschappelijke binding indien:
– het maximale jaarinkomen mag niet hoger zijn dan € 109.694,- per jaar (prijspeil 2025)
– een woningzoekende minimaal zes jaar onafgebroken woonachtig was in Werkhoven, of
– een woningzoekende de afgelopen 10 jaar minimaal 6 jaar aaneengesloten woonachtig was in Werkhoven.

De locatie
Een fijne centrale plek in het dorp, gelegen op loopafstand van scholen, dagopvang, bakker, snackbar en sportvoorzieningen. Nabij de Brink, met de eeuwenoude Sint Stevenskerk en de dorpspomp. Verder is in het dorp de mooie korenmolen Rijn & Weert voor ambachtelijke producten en is het nabij Kasteel Beverweerd gelegen. In de directe omgeving zijn tevens volop fiets- en wandelmogelijkheden. Uitvalsweg A12 en openbaar busvervoer van en naar Utrecht zijn goed bereikbaar. In 20 minuten ben je al in hartje Utrecht met haar gezellige terrassen en winkels!

De procedure/toewijzing
Indien u/je voldoet aan de doelgroep en geïnteresseerd bent in 1 van deze appartementen dan kunt u/kan je zich op de projectwebsite inschrijven. De sluitingsdatum is vrijdag 6 juni 2025 om 12:00 uur in de middag. Na 6 juni 2025 zal er op basis van de ingeschreven kandidaten een toewijzing plaatsvinden door de makelaar in samenspraak met de ontwikkelaar.

Kortom: comfortabel, energiezuinig en modern wonen op een ideale locatie!

Wij verwijzen je graag door naar nieuwwerchinge.nl voor alle informatie!

Kenmerken

Overdracht

Statusverkocht
Aanvaardingin overleg

Bouwvorm

Soort objectappartement
Soort appartementmaisonnette
Bouwjaar2025
Bouwvormnieuwbouw
Liggingaan rustige weg, in centrum

Indeling

Woonoppervlakte65 m²
Gebouwgebonden buitenruimte7 m²
Externe bergruimte5 m²
Inhoud164 m³
Aantal kamers3
Aantal slaapkamers2
Aantal woonlagen2 woonlagen
Gelegen op2e woonlaag

Energie

EnergielabelA+++
Energielabel einddatum16-05-2026
Isolatiedakisolatie, muurisolatie, vloerisolatie, volledig geisoleerd, hr glas
Verwarmingvloerverwarming geheel, warmtepomp

Buitenruimte

Tuingeen tuin

Bergruimte

Schuur / berginginpandig
Voorzieningenvoorzien van elektra

Parkeergelegenheid

Garageparkeerplaats
Parkeerfaciliteitenopenbaar parkeren

Dak

Soort daksamengesteld dak

Overig

Permanente bewoningja
Onderhoud binnenuitstekend
Onderhoud buitenuitstekend
Huidig gebruikwoonruimte
Huidige bestemmingwoonruimte

Voorzieningen

Voorzieningenmechanische ventilatie

Kadastrale gegevens

GemeenteWerkhoven
SectieA
Perceelnummer1297
Eigendomssituatievolle eigendom

Plattegronden

Omgeving

Wij nodigen je graag uit voor een bezichtiging

Laat hieronder jouw gegevens achter en we nemen contact met je op om een afspraak te maken.