verkocht

Op zoek naar een leuke starters woning in het gezellige Cothen? Dan is dit jouw kans..!

Dit gezellige huis biedt een lichte woonkamer, moderne woonkeuken, 3 ruime slaapkamers, betegelde badkamer en een royale berging in de achtertuin. De tuin heeft een lekker terras en er is een achterom.

Omschrijving

Cothen ligt centraal in de mooie Kromme Rijnstreek vlakbij Wijk bij Duurstede. In het dorp zijn buurtwinkels, bushalte en scholen binnen loopafstand en zijn volop fiets- en wandelmogelijkheden tussen boomgaarden en landerijen. Er is een goede verbinding naar Wijk bij Duurstede, Zeist, Utrecht en de A12 met zowel openbaar vervoer als auto.

Woonoppervlakte: circa 90,4 m²
Inhoud: circa 294 m³
Berging: circa 11,7 m²
Bouwjaar: 1930
Perceelgrootte: circa 109 m²

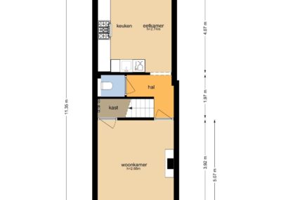
INDELING
Begane grond:
ENTREE met toegang tot de woonkamer van circa 16,2 m². Vanuit de woonkamer is er toegang tot de hal met toilet en trapopgang. De woonkeuken van circa 13,9 m², gesitueerd aan de achterzijde van de woning, is ingericht met moderne inbouwkeuken met inbouwapparatuur en vijf-pits gasfornuis. Vanuit de keuken bereik je de achtertuin. De volledig bestraatte tuin is voorzien van een ruime berging van circa 11,7 m² en een achterom. Aansluitend is er openbare parkeergelegenheid.

1e Verdieping:
Ruime overloop, toegang tot een ruime slaapkamer van circa 13,9 m² aan de voorzijde van de woning en een ruime hoofdslaapkamer van circa 13,9 m² aan de achterzijde met balkon. De betegelde badkamer/douchegelegenheid is voorzien van een inloopdouche en wastafel.

2e Verdieping:
Vaste trap naar de zolderverdieping waar een 3e slaapkamer is gerealiseerd van circa 11,4 m² voorzien van dakkapel, cv-opstelling en wasmachine aansluiting.

BIJZONDERHEDEN:
– Keuken, badkamer, toilet, zolder en vaste trap gerealiseerd in 2017-2018.
– Dakkapel achterzijde 2017.
– Volledige dubbel glas.
– Energielabel C.
– Mechanisch ventilatie box van 2018.
– Verwarming en warm water middels Nefit HR combiketel van 2014.
– 2 Draairamen op de eerste verdieping aan voorzijde hebben condensvorming.
– De dakbedekking van de berging is vermoedelijk asbesthoudend.
– Het totale perceel is circa 109 m² waarvan het voorste gedeelte van de voortuin, circa 14 m², nog door verkoper juridisch in eigendom worden verkregen.

Kenmerken

Overdracht

Statusverkocht
Aanvaardingin overleg

Bouwvorm

Soort objectwoonhuis
Soort woningeengezinswoning
Type woningtussenwoning
Bouwjaar1930
Bouwvormbestaande bouw
Liggingaan rustige weg, in woonwijk

Indeling

Woonoppervlakte90 m²
Perceeloppervlakte109 m²
Gebouwgebonden buitenruimte7 m²
Externe bergruimte12 m²
Inhoud294 m³
Aantal kamers4
Aantal slaapkamers3
Aantal woonlagen3 woonlagen

Energie

EnergielabelC
Energielabel einddatum25-03-2023
Isolatiedakisolatie, dubbel glas
Warmwatercv ketel
Verwarmingcv ketel
CV-ketelNefit (gas combiketel uit 2014, eigendom)

Buitenruimte

Tuinachtertuin, voortuin
Hoofdtuinachtertuin
Hoofdtuin oppervlakte29 m²
Ligging hoofdtuinnoord
Achteromja
Kwaliteit tuinnormaal

Bergruimte

Schuur / bergingvrijstaand steen

Parkeergelegenheid

Parkeerfaciliteitenopenbaar parkeren

Dak

Soort dakzadeldak

Overig

Permanente bewoningja
Onderhoud binnenredelijk
Onderhoud buitenredelijk
Huidig gebruikwoonruimte
Huidige bestemmingwoonruimte

Voorzieningen

Voorzieningenmechanische ventilatie, buitenzonwering

Kadastrale gegevens 1

GemeenteCothen
SectieB
Perceelnummer941
Oppervlakte95 m²
Eigendomssituatievolle eigendom

Kadastrale gegevens 2

GemeenteCothen
SectieB
Perceelnummer1854
Oppervlakte14 m²
Eigendomssituatievolle eigendom

360° Foto's

Klik en sleep met de muis om rond te kijken

Videotour

Plattegronden

Omgeving

Wij nodigen je graag uit voor een bezichtiging

Laat hieronder jouw gegevens achter en we nemen contact met je op om een afspraak te maken.