verkocht

Wat een plaatje! Met recht het meest gefotografeerde huis van Wijk bij Duurstede!

Op een schitterende locatie, onder de molen 'Rijn en Lek' in het historische Wijk bij Duurstede, staat dit charmante huis met tuin en garage!

Omschrijving

De woning is markant gelegen tegen de wal van de Rijn en Lek. Het huis is knus maar toch vrijstaand, met een gezellige woonkamer voorzien van karakteristieke elementen zoals glas-in-lood, kleine keuken, badkamer, 1 slaapkamer op de begane grond en 3 slaapkamers op de eerste verdieping. De tuin is gelegen op het zonnige zuidoosten met in de tuin een garage. Naast het huis is een prachtige tuin gesitueerd wat eigendom is van de gemeente, maar om een klein bedrag gehuurd wordt door de huidige bewoner. Parkeren kan in de eigen garage of voor de deur middels parkeervergunning.

Natuurlijk uitermate gunstig gelegen met om de hoek de restaurants, cafe’s en gezellige terrassen van Wijk bij Duurstede, maar ook dichtbij de bioscopen, winkels, scholen, supermarkt, parkjes en sportcentra.

Woonoppervlakte: 77 m²
Inhoud: 326,6 m³
Garage: 30,8 m²
Perceeloppervlakte: 133 m²
Bouwjaar: 1937
Energielabel: F

INDELING
Begane grond:
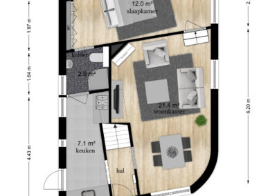
ENTREE, hal met trapopgang. De sfeervolle en charmante woonkamer is 21,4 m² groot en biedt toegang tot de 1e slaapkamer van 12 m². De dichte keuken is voorzien is van een magnetron, elektrisch gasfornuis, afzuigkap, koelkast en oven. Aansluitend is de badkamer te bereiken vanuit de keuken en ingericht met douchecabine, toilet en wastafel.

Vanuit de zijdeur in de keuken is er toegang tot de zij-/achtertuin. De tuin, hoofdzakelijk gelegen op het zuiden, is voorzien van een terras, borders met diverse beplantingen. Achterin bevindt zich een ruime garage van 30,8 m² groot, voorzien van elektra. Naast vanuit huis en vanuit de tuin is een prachtig uitzicht op de naastgelegen wal, eigendom van de gemeente, welke is ingericht als sier-/moestuin.

Kelder:
De kelder is te bereiken middels een vaste houten trap vanuit de badkamer en is 12,5 m² groot.

Eerste verdieping:
Ruime overloop met bergruimte, opstelplaats voor CV-ketel en toegang tot 3 slaapkamers van 11,2 m², 6,8 m² en 4,7 m².

BIJZONDERHEDEN
– Beschermd stadsgezicht.
– Platte daken vervangen in 2022.
– Schilderwerk kozijnen, ramen en deuren in 2021.
– Warm water en verwarming middels CV-ketel Nefit 2016.
– Begane grond dubbel glas, 1e verdieping enkel glas.
– Er is asbesthoudend materiaal aanwezig bij de schoorsteen.
– De aangrenzende tuin tegen de wal en de voortuin wordt gehuurd van de gemeente (huidige huurprijs € 16,95 per jaar, circa 220 m² kavelgrootte).
– De oprit naar de garage is middels een recht van overpad.
– Parkeervergunning mogelijk in de binnenstad voor bewoner a € 39,65 per jaar.
– Voorkeur oplevering over 6 maanden.

Kenmerken

Overdracht

Statusverkocht
Aanvaardingin overleg

Bouwvorm

Soort objectwoonhuis
Soort woningeengezinswoning
Type woningvrijstaande woning
Bouwjaar1937
Bouwvormbestaande bouw
Liggingaan rustige weg, in centrum

Indeling

Woonoppervlakte77 m²
Perceeloppervlakte133 m²
Externe bergruimte31 m²
Inhoud327 m³
Aantal kamers5
Aantal slaapkamers4
Aantal woonlagen3 woonlagen

Energie

EnergielabelF
Energielabel einddatum05-10-2032
Isolatiedakisolatie, gedeeltelijk dubbel glas
Warmwatercv ketel
Verwarmingcv ketel
CV-ketelNefit (gas combiketel uit 2016, eigendom)

Buitenruimte

Tuinachtertuin, voortuin, zijtuin
Hoofdtuinachtertuin
Hoofdtuin oppervlakte37 m²
Ligging hoofdtuinzuidoost
Achteromja
Kwaliteit tuinverzorgd

Parkeergelegenheid

Garagevrijstaand steen, voor 1 auto
Parkeerfaciliteitenparkeervergunningen
Totaal aantal garages1

Dak

Soort dakzadeldak

Overig

Permanente bewoningja
Onderhoud binnenredelijk tot goed
Onderhoud buitenredelijk tot goed
Huidig gebruikwoonruimte
Huidige bestemmingwoonruimte

Voorzieningen

Voorzieningendakraam

Kadastrale gegevens 1

GemeenteWijk bij Duurstede
SectieB
Perceelnummer1433
Oppervlakte65 m²
Eigendomssituatievolle eigendom

Kadastrale gegevens 2

GemeenteWijk bij Duurstede
SectieB
Perceelnummer2028
Oppervlakte68 m²
Eigendomssituatie

360° Foto's

Klik en sleep met de muis om rond te kijken

Videotour

Omgeving

Wij nodigen je graag uit voor een bezichtiging

Laat hieronder jouw gegevens achter en we nemen contact met je op om een afspraak te maken.