verkocht

Fraai gelegen tussenwoning in het hart van Odijk!

Deze woning beschikt over een lichte woonkamer met halfopen woonkeuken, moderne badkamer en maar liefst 4 slaapkamers! Hier kun je met wat kleine aanpassingen jouw droomhuis creëren! De tuin is lekker ruim en groen, voorzien van een houten berging en een overkapping. Daarnaast is de locatie ideaal voor kinderen met school en opvang in de buurt.

Omschrijving

Odijk ligt centraal in Nederland, onder de rook van Utrecht. De woning bevindt zich in het hart van het dorp, op loopafstand van het levendige dorpscentrum met diverse winkels, openbaar vervoer, scholen, speeltuinen en sportfaciliteiten. Met de fiets ben je snel bij het NS-station Driebergen/Zeist of Bunnik.

De woning heeft een gunstige ligging nabij de snelwegen A12, A27 en A28, maar biedt tegelijkertijd een rustige omgeving met veel groen, omringd door prachtige wandel- en fietsroutes.

KENMERKEN
Woonoppervlakte: 108 m²
Inhoud woning: 354 m³
Perceeloppervlakte: 172 m²
Bouwjaar: 1968
Energielabel: D

INDELING
Begane grond:
De ENTREE biedt je toegang tot een hal met toilet en trapopgang. Vanuit de hal is de royale woonkamer van ruim 34.6 m² bereikbaar, welke is verdeeld in twee gedeeltes. Aan de voorzijde van de woning bevindt zich de zitkamer, uitgerust met een openhaard en een grote raampartij die zorgt voor veel natuurlijk licht. Het zitgedeelte is tevens voorzien van een infraroodpaneel aan het plafond voor extra warmtecomfort. De begane grond heeft een combinatie van houten vloeren en tegels in de hal en keuken. Aan de achterzijde van de woning bevindt zich een ruime eethoek met een halfopen keuken. Ook hier is een infraroodpaneel aan het plafond geplaatst voor extra comfort tijdens het lange tafelen. De keuken is voorzien van diverse inbouwapparatuur, waaronder een inductiekookplaat en oven. De keuken is afsluitbaar met een schuifdeur, en door de ruime opzet van 8.9 m² is er nog plaats voor een kleine eettafel. De gehele begane grond is voorzien van HR+ glas.
Via de keuken heb je toegang tot de diepe achtertuin, die maar liefst bijna 13 meter diep is (NO). De tuin is deels bestraat met achterin de houten berging van 8.1m² met overkapping van 8.5 m². Er is een achterom aanwezig naar de straat.

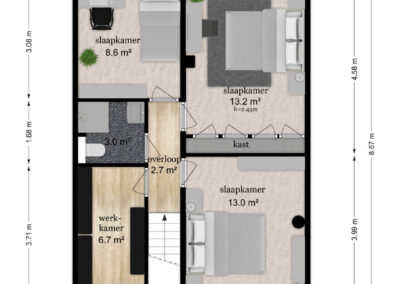
1e verdieping:
Op de eerste verdieping bevinden zich 4 slaapkamers en een moderne badkamer. Aan de voorzijde van de woning zijn 2 slaapkamers van 6.7 m² en 13 m², beide voorzien van grote raampartij die zorgen voor goede lichtinval. De badkamer, die in 20198 is vernieuwd, is uitgerust met een inloopdouche met hardglazen scherm, hangend toilet, designradiator en een wastafelmeubel. Aan de achterzijde van de woning bevinden zich nog 2 slaapkamers van 8.6 m² en 13.2 m². De grootste slaapkamer is voorzien van een inbouwkast.

Dit fijne huis biedt veel mogelijkheden voor de toekomst met heerlijke leefruimte en 4 ruime slaapkamers! Ben jij enthousiast en wil jij graag komen kijken? Neem dan snel contact op!

BIJZONDERHEDEN:
– Fantastische locatie!
– Vrij zicht op gemeentelijk groen.
– Woning met veel potentie
– Middels een dakopbouw
– Dak vernieuwd in 2023.
– Badkamer vernieuwd 2018.
– 4 slaapkamers.
– HR+ glas begane grond.
– De gehele woning is voorzien van comfortabele hete lucht verwarming (Brink) middels roosters in delen van de vloer.
– Warm water middels huurboiler (80 liter) a € 12,- per maand.
– Oplevering kan snel.
– In de koopovereenkomst zullen de volgende clausules worden opgenomen: ‘as is where is’, ouderdoms- en asbestclausule.

Kenmerken

Overdracht

Statusverkocht
Aanvaardingin overleg

Bouwvorm

Soort objectwoonhuis
Soort woningeengezinswoning
Type woningtussenwoning
Bouwvormbestaande bouw
Liggingaan rustige weg, in woonwijk, vrij uitzicht

Indeling

Woonoppervlakte108 m²
Perceeloppervlakte172 m²
Externe bergruimte8 m²
Inhoud354 m³
Aantal kamers5
Aantal slaapkamers4
Aantal woonlagen2 woonlagen

Energie

EnergielabelD
Energielabel einddatum11-11-2034
Warmwatercv ketel
Verwarminghete lucht verwarming

Buitenruimte

Tuinachtertuin, voortuin
Hoofdtuinachtertuin
Hoofdtuin oppervlakte84 m²
Ligging hoofdtuinnoordoost
Achteromja
Kwaliteit tuinaan te leggen

Bergruimte

Schuur / bergingvrijstaand hout
Voorzieningenvoorzien van elektra

Parkeergelegenheid

Parkeerfaciliteitenopenbaar parkeren

Dak

Soort dakplat dak

Overig

Permanente bewoningja
Onderhoud binnenredelijk
Onderhoud buitenredelijk
Huidig gebruikwoonruimte
Huidige bestemmingwoonruimte

Kadastrale gegevens

GemeenteOdijk
SectieA
Perceelnummer1939
Oppervlakte172 m²
Eigendomssituatievolle eigendom

360° Foto's

Klik en sleep met de muis om rond te kijken

Plattegronden

Omgeving

Wij nodigen je graag uit voor een bezichtiging

Laat hieronder jouw gegevens achter en we nemen contact met je op om een afspraak te maken.