verkocht

BELEGGINGSOBJECT / INVESTERINGSOBJECT!

Voor meer informatie over dit object kunt u naar livingstonelaan477.nl

Omschrijving

In de wijk Kanaleneiland Zuid, bieden wij u dit interessante beleggingsobject aan. Het betreft een 2-laagse tussenwoning met 6 kamers. Het pand is in deels verhuurde staat. Een geschikt woonobject om nog een 3e woonlaag op te bouwen!

De woning is gelegen aan een brede straat. Aan de overzijde wordt een mooi nieuwbouwproject gerealiseerd, wat voor een nieuw straatbeeld zal zorgen. In de directe omgeving vind je een divers aanbod aan winkels, basisscholen, kinderdagverblijven en gezondheidscentra. De bereikbaarheid is uitstekend: bus- en tramhaltes liggen op loopafstand en binnen enkele minuten zit op de uitvalswegen (A2 en A12).

KENMERKEN:
Bouwjaar: 1982
Gebruiksoppervlakte wonen: 94 m²
Inhoud: 314,81 m³
Perceelgrootte:146 m²
Energielabel: C

INDELING:
Begane grond; Entree/hal, toilet, trapopgang en trapkast, kamer 1 (woon-slaapkamer) van 19,7 m², keuken van 6,7 m² met aangesloten eetkamer van 9,3 m². Vanuit de keuken is de achtertuin te bereikbaar. Een tuin van circa 9 meter diep, deels bestraat en voorzien van achterom middels een brandgang.

Eerste verdieping
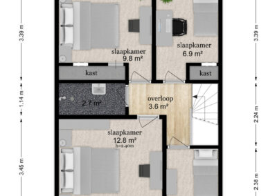
1e verdieping: Overloop, 4 slaapkamers, slaapkamer 1 (4,4 m²), slaapkamer 2 (6,9 m²), slaapkamer 3 (9,8 m²), slaapkamer 4 (12,8 m²), badkamer (2,7m²) met douche en vaste wastafel.

Tuin
Voorzien van voor- en achtertuin. De achtertuin is circa 9 meter diep.

Heeft u interesse? Bent u op zoek naar een goede belegging?
Bel gerust met ENTREE makelaars voor nadere informatie en het plannen van een bezichtiging. In verband met verschillende huurders organiseren wij een specifieke dag waarop de bezichtigingen plaats zullen vinden.

BIJZONDERHEDEN:
– Aanvaarding in overleg.
– Een geschikt woonobject om nog een 3e woonlaag op te bouwen!
– De woning is in deels verhuurde staat. Er zijn 2 kamers verhuurd aan 2 verschillende bewoners. Zij maken gebruik van de gezamenlijke ruimtes, te weten: hal, trapopgang, trapkast, toilet, woonkeuken, overloop, badkamer, voor- en achtertuin. De totale huuropbrengst hiervan is € 720,- per maand, exclusief gas/water/licht.
– De overige 3 kamers zijn eventueel nog beschikbaar voor verhuur.
– Geen berging aanwezig.

De volgende zaken worden n de koopovereenkomst opgenomen:
– Niet bewoners clausule.
– As is, where is clausule.
– Asbest clausule.
– Niet leeg opgeleverd maar in deels verhuurde staat clausule.
– Notariskeuze verkoper clausule.

Kenmerken

Overdracht

Statusverkocht
Aanvaardingin overleg

Bouwvorm

Soort objectwoonhuis
Soort woningeengezinswoning
Type woningtussenwoning
Bouwjaar1964
Bouwvormbestaande bouw
Ligging

Indeling

Woonoppervlakte94 m²
Perceeloppervlakte146 m²
Inhoud315 m³
Aantal kamers6
Aantal slaapkamers4
Aantal woonlagen2 woonlagen

Energie

EnergielabelC
Energielabel einddatum13-03-2035
Warmwatercv ketel
Verwarmingcv ketel

Buitenruimte

Tuinachtertuin, voortuin
Hoofdtuinachtertuin
Hoofdtuin oppervlakte46 m²
Ligging hoofdtuinzuidwest
Achteromja
Kwaliteit tuinaan te leggen

Parkeergelegenheid

Parkeerfaciliteitenbetaald parkeren

Dak

Soort dakplat dak

Overig

Permanente bewoningja
Onderhoud binnenredelijk
Onderhoud buitenredelijk
Huidig gebruikwoonruimte
Huidige bestemmingwoonruimte

Kadastrale gegevens

GemeenteUtrecht
SectieR
Perceelnummer259
Oppervlakte146 m²
Eigendomssituatievolle eigendom

Plattegronden

Download:

Omgeving

Wij nodigen je graag uit voor een bezichtiging

Laat hieronder jouw gegevens achter en we nemen contact met je op om een afspraak te maken.