verkocht

Royale eengezinswoning met uitgebouwde keuken, carport en 5 slaapkamers op groot perceel!

Ben jij op zoek naar een ruime en comfortabele tussenwoning in de kindvriendelijke woonwijk “De Noorderwaard”? Deze woning met label B is extra geïsoleerd en biedt super veel ruimte in en om huis! Dankzij de grote raampartij aan voor- en achterzijde van het huis is er volop lichtinval. De royale living van bijna 39 m², de ruimte boven met moderne badkamer en de heerlijke achter- en voortuin maken dit huis erg aantrekkelijk!

Omschrijving

Naast het comfortabele wonen profiteer je hier van een uitstekende ligging. Op loopafstand vind je het prachtige park aan de Kromme Rijn en het landelijke buitengebied van Wijk bij Duurstede, ideaal voor een ontspannen wandeling of een mooie fietstocht. Daarnaast zijn er ook verschillende speeltuintjes voor kinderen in de wijk te vinden waar ze veilig en vrij kunnen spelen, ééntje zelfs direct achter het huis!

KENMERKEN:
• Woonoppervlakte: 126.80 m²
• Perceel: 208 m²
• Inhoud woning: 444.67 m³
• Bouwjaar: 1979
• Energielabel: B

INDELING:
Begane grond:
ENTREE, hal met meterkast en toiletruimte. Aansluitend kom je binnen in de royale en lichte living van maar liefst 38.8 m². Heerlijk licht dankzij de grote raampartij aan zowel de voor- als achterzijde (voorzien van HR++ beglazing)
Een aangename en sfeervolle woonkamer met massief eikenhouten vloerdelen (afkomstig zijn uit oude Franse treinwagons). Een ruimte volop mogelijkheden voor een gezellig zitgedeelte en een ruime eethoek. De vloer is volledig na geïsoleerd.
Aan de achterzijde van de woning bevindt zich de keuken met een oppervlakte van 6.7m², uitgerust met een 4-pits gasfornuis, koel-vriescombinatie en vaatwasser. Vanuit de keuken heb je direct toegang tot de diepe achtertuin, die gunstig is gelegen op het zonnige noordwesten. Hier kun je heerlijk genieten van de middag- en avondzon op 1 van de terrasjes. De tuin biedt voldoende ruimte voor speelruimte de kinderen.

Eerste verdieping:
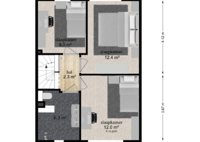
Op deze verdieping bevinden zich 3 ruime slaapkamers van 8m², 12.4m² en 12m². De badkamer is vernieuwd en vergroot in 2012 naar 6.3m² en is voorzien van een royale inloopdouche, wastafelmeubel en tweede toilet.

Tweede verdieping:
Een voorzolder met een was-en droogaansluiting en een praktische berging voor extra opslag. Aansluitend 2 ruime slaapkamers van 12.2m² en 12.4m², beide voorzien van een dakraam. Deze kamers zijn ideaal als slaap-, werk- of hobbyruimte.

Vliering:
Deze vliering is middels vlizotrap bereikbaar vanaf de voorzolder. Een vliering voor extra bergruimte, ideaal voor het opslaan van seizoensgebonden spullen.

BIJZONDERHEDEN
– Volledig geïsoleerd huis met label B;
– 5 Ruime slaapkamers;
– Carport met oprit, geschikt voor 1 auto;
– Volledig voorzien van HR++ glas in 2022;
– De begane grond vloer is extra na geïsoleerd in 2018;
– HR combiketel van 2015;
– Badkamer vernieuwd en vergroot in 2012;
– Uitbouw van keuken is gerealiseerd in 1997;
– Keukenboiler is huur;
– Oplevering medio half juli.

Kenmerken

Overdracht

Statusverkocht
Aanvaardingin overleg

Bouwvorm

Soort objectwoonhuis
Soort woningeengezinswoning
Type woningtussenwoning
Bouwjaar1979
Bouwvormbestaande bouw
Liggingaan rustige weg, in woonwijk

Indeling

Woonoppervlakte127 m²
Perceeloppervlakte208 m²
Externe bergruimte8 m²
Inhoud445 m³
Aantal kamers6
Aantal slaapkamers5
Aantal woonlagen4 woonlagen

Energie

EnergielabelB
Energielabel einddatum20-03-2025
Isolatiedakisolatie, vloerisolatie, volledig geisoleerd, hr glas
Warmwaterelektrische boiler huur
Verwarmingcv ketel
CV-ketelEco TEC plus (gas combiketel uit 2015, eigendom)

Buitenruimte

Tuinachtertuin, voortuin
Hoofdtuinachtertuin
Hoofdtuin oppervlakte97 m²
Ligging hoofdtuinnoordwest
Achteromja
Kwaliteit tuinverzorgd

Bergruimte

Schuur / bergingvrijstaand steen
Voorzieningenvoorzien van elektra

Parkeergelegenheid

Garagecarport, parkeerplaats
Parkeerfaciliteitenopenbaar parkeren, op eigen terrein
Parkeer capaciteit1

Dak

Soort dakzadeldak

Overig

Permanente bewoningja
Onderhoud binnenredelijk tot goed
Onderhoud buitenredelijk tot goed
Huidig gebruikwoonruimte
Huidige bestemmingwoonruimte

Kadastrale gegevens

GemeenteWijk bij Duurstede
SectieC
Perceelnummer2224
Oppervlakte208 m²
Eigendomssituatievolle eigendom

360° Foto's

Klik en sleep met de muis om rond te kijken

Omgeving

Wij nodigen je graag uit voor een bezichtiging

Laat hieronder jouw gegevens achter en we nemen contact met je op om een afspraak te maken.