verkocht

Welkom bij deze LUXE karakteristieke jaren '30 woning in Leersum met energielabel A++. Gelegen aan een brede laan, vind u deze duurzame, GASLOZE 2-onder-een kapwoning voorzien van o.a. een warmtepomp, warmtepompboiler, 19 zonnepanelen, airconditioning en ruim bijgebouw! Hoogwaardige afwerking in de gehele woning. De woning is op loopafstand van scholen, de voorzieningen van het centrum van Leersum en de bossen die de Utrechtse Heuvelrug rijk is.

Bijzonderheden: • Energielabel A++ • Gasloos en duurzaam wonen • Warmtepomp 2023 • Warmtepompboiler 2023 • Vloerverwarming begane grond en badkamer • 19 zonnepanelen met micro omvormers • 2x airconditioning • Zeer hoogwaardige afwerking in de gehele woning en bijgebouw (INSTAPKLAAR) • Gestucte wanden en plafonds met randafwerkingen • Luxe binnendeuren/handgrepen • Authentieke glas-in-loodramen verwerkt in dubbelglas • Metselwerk voorzien van knipvoegen • Volledig gemoderniseerd en vernieuwd afgelopen tijd • Woonkeuken • Aanbouw 2011 • Jaren '30 woning met klassieke elementen • Vrijstaand fraai bijgebouw (2017) in gebruik als mancave met separaat toilet en royale overkapping • Mancave heeft een houtkachel met een warmte terugwinning en airconditioning • Eerste verdieping bijgebouw met vide • Bijgebouw geschikt als atelier/praktijk aan huis/gastenverblijf/mantelzorg • Fraai aangelegde tuin op zuidoosten • Schilderwerk 2022 • Wanden in 2021 gesaust

Omschrijving

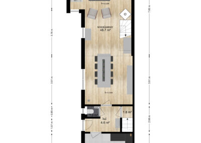
Kom binnen in deze BIJZONDERE woning en ervaar de sfeer en uitstraling. Een geheel gerenoveerde, uitgebouwde moderne woning met klassieke elementen zoals glas-in-loodramen (dubbel glas) en plafond-ornamenten met randafwerking op de begane grond. In de gehele woning zijn de wanden en plafonds gestuct. De woning heeft een woonoppervlakte van 126 m2 verdeeld over 2 woonlagen met in totaal 4 slaapkamers.

De uitgebouwde woonkamer beschikt over grote raampartijen, openslaande deuren en een houtkachel wat het een licht en sfeervol geheel maakt. Aansluitend bevindt zich een ruime eetgedeelte en/of speelhoek voor de kinderen. De woonkeuken bevindt zich aan de voorkant van de woning. Bij de erker is een kookeiland gecreëerd. De keuken is voorzien van diverse inbouwapparatuur en opbergruimte. De gehele begane grond is voorzien van vloerverwarming. In de hal bevindt zich een separaat toilet en toegang tot de kelder, deze is ingericht als technische ruimte met o.a. de warmtepomp en warmtepompboiler. Tevens is hier voldoende bergingsruimte voor voorraadspullen.
In de woonkamer bevindt zich de toegangsdeur tot de achtertuin, welke strak en fraai is vormgegeven met gras en borders. De royale zonnige tuin is gelegen op het zuidoosten, achterin de tuin staat een bijzonder bijgebouw met overkapping. Het is hier heerlijk vertoeven. Tevens bevindt zich een elektrische roldeur (ideaal voor bijv. een motor of de elektrische fiets). Op dit moment is deze ruimte gedeeltelijk ingericht als mancave. Deze beschikt over een airconditioning, een houtkachel met warmte terugwinning, een separaat toilet en een bovenverdieping/ingericht als slaapkamer, maar met wat aanpassingen kan het ook perfect dienen als atelier, praktijk aan huis, gastenverblijf of mantelzorg.
Vanuit de woonkamer bereik je met de luxe trap de 1e verdieping met in totaal 4 slaapkamers, de badkamer en een wasruimte. Deze etage beschikt over dakramen en dakkapellen. De master-bedroom is tevens voorzien van airconditioning en een mooi ingedeelde vaste kastenwand. De luxe badkamer is voorzien van vloerverwarming, een vrijstaand modern bad, een dubbele wastafel met natuurstenen kommen en geborstelde messing kranen en inloopdouche. Helemaal van de tijd van nu! De gehele verdieping is voorzien van gestucte wanden en plafonds.

Op de eigen oprit en aan de voorkant van de woning is er plek voor 2 auto’s. Tevens zijn de voorzieningen van het centrum van Leersum op loopafstand. Ideaal!

Ziet u uzelf al duurzaam wonen met lage energielasten in een karakteristieke woning? Neem contact met ons op om een bezichtiging in te plannen!

Leersum is een dorp midden op de Utrechtse Heuvelrug, een ideale uitvalsbasis om te genieten van de bossen die de Utrechtse Heuvelrug rijk is met mooie wandelroutes. Ook de horeca van Leersum heeft veel te bieden, van een eetcafé tot een met Michelin ster bekroonde restaurant Voltaire. Het is erg leuk wandelen op het landgoed van Zuylestein, waar loslopende bosvarkens in afgezette gebieden rondlopen en er is tevens een landgoedwinkeltje waar verse producten te koop zijn. Of kies voor een leuke wandelroute om de hoek, op landgoed Parc Broekhuizen met een prachtig aanzicht van het kasteel. Zelfs de uitdagende MTB offroads trails in Leersum zijn een echte beleving.

Woonoppervlakte: 126 m2
Hoogwaardig bijgebouw 37 m2
Inhoud: 512 m3
Perceelgrootte: 372 m2
Bouwjaar: 1932, aanbouw 2011 en gerenoveerd
Energielabel: A++

-Indeling-
Begane grond:
ENTREE, hal, toiletruimte, provisieberging/meterkast, toegang tot de royale lichte woonkamer met houtkachel en uitzicht over de tuin, keuken met kookeiland voorzien van opbergruimte en diverse apparatuur, waaronder een vaatwasser, combi oven-magnetron en inductieplaat.

Kelder:
Technische ruimte met o.a. warmtepomp, warmtepompboiler en bergingsruimte.

Eerste verdieping:
Overloop, vide met toegang tot 4 slaapkamers, wasruimte en een badkamer uitgerust met een vrijstaand bad, inloopdouche, dubbele wastafel en toilet. Toegang tot de zolder.

Bijgebouw met overkapping:
Begane grond, gedeeltelijk in gebruik als mancave met separaat toilet. Eerste verdieping in gebruik als slaapruimte met vide.
Met aanpassingen ook geschikt als atelier/praktijk aan huis/gastenverblijf/mantelzorg.

Overige informatie:
• Voorbereiding voor laadpaal is aanwezig.
• Dichtbij basisscholen, sportcomplex, bossen, winkels en binnen no-time op de A12
• De volgende clausule wordt opgenomen in de koopovereenkomst: gezien het bouwjaar van de woning, zal er een ouderdomsclausule worden gebruikt.

Kenmerken

Overdracht

Statusverkocht
Aanvaardingin overleg

Bouwvorm

Soort objectwoonhuis
Soort woningeengezinswoning
Type woningtwee onder een kapwoning
Bouwjaar1932
Bouwvormbestaande bouw
Liggingin woonwijk, in bosrijke omgeving

Indeling

Woonoppervlakte126 m²
Perceeloppervlakte372 m²
Overige inpandige ruimte9 m²
Externe bergruimte49 m²
Inhoud512 m³
Aantal kamers5
Aantal slaapkamers4
Aantal woonlagen6 woonlagen

Energie

EnergielabelA++
Energielabel einddatum17-04-2034
Isolatiedakisolatie, muurisolatie, vloerisolatie, dubbel glas
Warmwaterelektrische boiler eigendom
Verwarmingvloerverwarming gedeeltelijk, warmtepomp, houtkachel

Buitenruimte

Tuinachtertuin, voortuin, zijtuin
Hoofdtuinachtertuin
Hoofdtuin oppervlakte192 m²
Ligging hoofdtuinzuidoost
Achteromja
Kwaliteit tuinverzorgd

Bergruimte

Schuur / bergingvrijstaand hout
Voorzieningenvoorzien van verwarming, voorzien van elektra, voorzien van water

Parkeergelegenheid

Parkeerfaciliteitenopenbaar parkeren, op eigen terrein
Parkeer capaciteit2

Dak

Soort daksamengesteld dak

Overig

Permanente bewoningja
Onderhoud binnenuitstekend
Onderhoud buitenuitstekend
Huidig gebruikwoonruimte
Huidige bestemmingwoonruimte

Voorzieningen

Voorzieningentv kabel, airconditioning, rookkanaal, dakraam, glasvezel kabel, zonnepanelen, natuurlijke ventilatie

Kadastrale gegevens

GemeenteLeersum
SectieD
Perceelnummer2240
Oppervlakte372 m²
Eigendomssituatievolle eigendom

Omgeving

Wij nodigen je graag uit voor een bezichtiging

Laat hieronder jouw gegevens achter en we nemen contact met je op om een afspraak te maken.