verkocht

Ontdek deze royale en levensloopbestendige woning op een unieke locatie in het pittoreske, oude dorp van Amerongen, op het sfeervolle hofje naast het Tabaksmuseum en grenst met de achtertuin aan het park achter de historische Andrieskerk.

Vanaf de voorkant oogt deze hofjeswoning bescheiden, maar binnen zult u verrast zijn door de royale ruimte en het woonoppervlak. Deze woning combineert comfortabel wonen op de begane grond met royale bovenverdiepingen, waardoor het de perfecte keuze is voor gezinnen én voor wie een toekomstbestendige woning zoekt!

Omschrijving

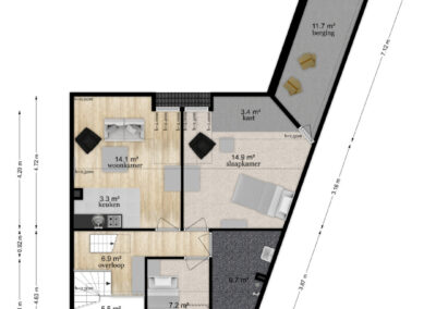
Bij binnenkomst vind u een ruimtelijke hal met vide, de woonkamer is voorzien van vele raampartijen met o.a. schuifdeuren met uitzicht op het park aan de achterkant van de woning, hier kunnen kinderen ook heerlijk spelen terwijl u een oogje in het zeil houdt. Aangrenzend de open keuken en een ruime bijkeuken en berging voor extra gemak zodat u voldoende opbergruimte heeft of tuingereedschap kunt stallen. De begane grond is tevens voorzien van een slaapkamer met badkamer, wat het ook ideaal maakt als levensloopbestendige woning. Vanuit deze slaapkamer heeft u uitzicht op het hofje met het historische Tabaksmuseum. Het is natuurlijk ook mogelijk om van deze ruimte een kantoor aan huis te maken of een hobbykamer.

Op de 1e verdieping bevinden zich 3 royale slaapkamers (1 voorzien van een standaard keuken) met veel opbergmogelijkheden en een ruime badkamer en daarnaast een royale berging boven de aanbouw.
Vaste trap naar de 2e verdieping waar een 5e slaapkamer te creëren is.

De tuin is gelegen op het zuidoosten. Hier heeft u uitzicht op het groene parkje aan de achterzijde van de Andrieskerk.

In deze woning zijn o.a. renovaties nodig voor de keuken en de badkamers.

Amerongen is een schilderachtig dorp van ongeveer 1.000 jaar oud en een parel op de Utrechtse Heuvelrug. Verken wandelend het historisch dorpscentrum met historische panden, ateliers, winkeltjes, restaurants, tabaksschuur en de uiterwaarden van De Rijn. Het is niet alleen een fijne plek om te wonen, maar een gemeenschap om deel van uit te maken. Geniet van de nabijheid van het uitgestrekte Nationaal Park Utrechtse Heuvelrug, ontdek de historische pracht van Kasteel Amerongen en proef de lokale cultuur in de gezellige dorpskern. Ook op culinair gebied heeft Amerongen veel te bieden, van eetcafé Buitenlust tot luxer dineren bij De Rode Leeuw No.35 of bij Bistro Liz.

Benieuwd geworden naar deze woning op deze unieke locatie? Bel of mail ons op om een bezichtiging in te plannen!

Woonoppervlakte: 121 m2
Inhoud: 527 m3
Perceelgrootte: 133 m2
Bouwjaar: 1988
Energielabel: C

-Indeling-
Begane grond:
ENTREE, hal, toiletruimte, provisieberging/meterkast, toegang tot de woonkamer met aansluitend eetgedeelte, openslaande deuren naar de achtertuin toe, gashaard, open eenvoudige keuken voorzien van opbergruimte en diverse apparatuur. Bijkeuken/wasruimte en een inpandige berging. Slaapkamer en aangrenzend een badkamer uitgerust met douche, zitbad, wastafel en toilet.

Eerste verdieping:
Overloop met toegang tot 3 slaapkamers (waarvan 1 voorzien is van een standaard keuken), badkamer uitgerust met wastafel en douche, royale berging boven aanbouw.

Zolder:
Vaste trap. Berging en mogelijkheid om 5e slaapkamer te realiseren. Cv ruimte.

Bijzonderheden:
• Wonen in het historisch centrum van Amerongen, gelegen bij het Tabaksmuseum, Andrieskerk en Kasteel Amerongen
• Levensloopbestendig wonen is mogelijk door slaap- en badkamer op begane grond
• Royale slaapkamers op de bovenverdieping
• Er zijn 4 parkeerplekken achter de tabaksschuur speciaal voor dit rijtje woningen aanwezig.
• Achtertuin grenst direct aan het park
• Vrij uitzicht
• CV uit 2019
• Hofjeswoning aan een gezellig besloten pleintje
• Bijzonder mooi uitzicht voor en achter de woning
• Beschermd dorpsgezicht
• Ruime openbare parkeergelegenheid
• Dichtbij basisscholen, sportcomplex, bossen, winkels en vlakbij de A12
• Onder andere de volgende clausules worden opgenomen in de koopovereenkomst: Niet-bewoningsclausule | Notariskeuze verkoper, zie brochure voor alle clausules.

Kenmerken

Overdracht

Statusverkocht
Aanvaardingin overleg

Bouwvorm

Soort objectwoonhuis
Soort woningeengezinswoning
Type woningtussenwoning
Bouwjaar1988
Bouwvormbestaande bouw
Liggingaan park, aan rustige weg, in centrum, vrij uitzicht, open ligging, in bosrijke omgeving

Indeling

Woonoppervlakte121 m²
Perceeloppervlakte133 m²
Overige inpandige ruimte19 m²
Inhoud527 m³
Aantal kamers5
Aantal slaapkamers4
Aantal woonlagen3 woonlagen

Energie

EnergielabelC
Energielabel einddatum14-10-2034
Isolatiedakisolatie, muurisolatie, vloerisolatie, dubbel glas, volledig geisoleerd
Warmwatercv ketel
Verwarmingcv ketel
CV-ketelRemeha (gas combiketel uit 2019, eigendom)

Buitenruimte

Tuinachtertuin, voortuin
Hoofdtuinachtertuin
Hoofdtuin oppervlakte55 m²
Ligging hoofdtuinzuidoost
Achteromja
Kwaliteit tuinnormaal

Bergruimte

Schuur / bergingaangebouwd steen
Voorzieningenvoorzien van elektra

Parkeergelegenheid

Parkeerfaciliteitenopenbaar parkeren

Dak

Soort dakzadeldak

Overig

Permanente bewoningja
Onderhoud binnengoed
Onderhoud buitengoed
Huidig gebruikwoonruimte
Huidige bestemmingwoonruimte

Voorzieningen

Voorzieningentv kabel, schuifpui, dakraam, glasvezel kabel, natuurlijke ventilatie

Kadastrale gegevens

GemeenteAmerongen
SectieD
Perceelnummer5241
Oppervlakte133 m²
Eigendomssituatievolle eigendom

Omgeving

Wij nodigen je graag uit voor een bezichtiging

Laat hieronder jouw gegevens achter en we nemen contact met je op om een afspraak te maken.