verkocht

Wie pakt deze mooie kans...? Een kant-en-klaar transitieplan van horeca naar wonen!

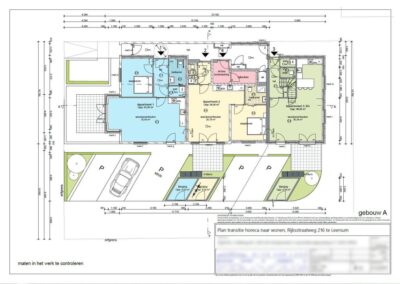
Namens onze opdrachtgever bieden wij aan: het (gedeeltelijke) transitieplan Rijksstraatweg 216 te Leersum. De aangeboden transitie van 1 naar 3 wooneenheden is gelegen op een totaal perceel van circa 408 m².

Omschrijving

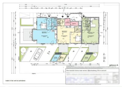
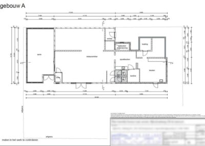
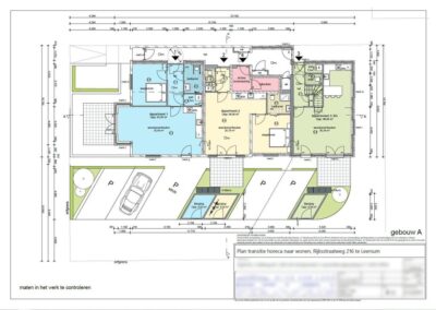
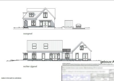
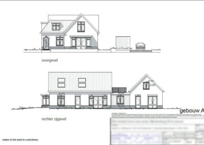
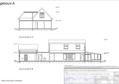
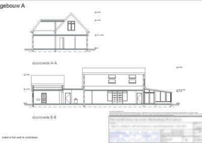
Op basis van het transitieplan van 6-5-2022 is besloten namens opdrachtgever te verkopen: het transitieplan appartement 1, 2 en 4, te weten in het hoofdgebouw (voormalig restaurant).

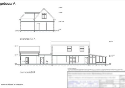
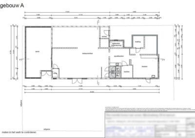
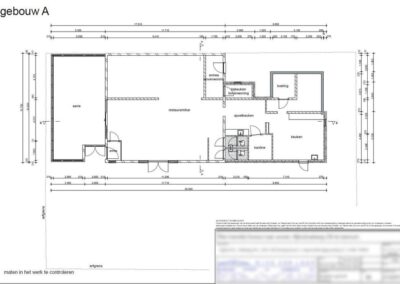
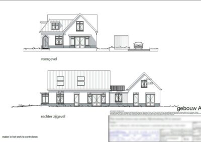
Dit vrijstaande markante object heeft jaren lang dienst gedaan als horecagelegenheid. Op 18 juli 2022 heeft gemeente Utrechtse Heuvelrug goedkeuring verleend het hoofdgebouw op de begane grond te kunnen transformeren naar ‘wonen’. Het voormalige restaurant kan conform het ingediende bouwkundige ontwerp omgebouwd worden naar 2 appartementen, waarvan 1 MIVA (mindervalide) appartement. Het bovengelegen 3e appartement (gerenoveerd in 2010) is reeds zelfstandig als wooneenheid en kan daarbij behouden blijven.

Het getekende appartement 3 alsmede het vrijstaande bijgebouw (Nudge Cycling) behoudt opdrachtgever in deze situatie.

Leersum is een gezellig dorp in de prachtige Utrechtse Heuvelrug met veel voorzieningen en recreatiemogelijkheden. Het object ligt aan de hoofdweg van het dorp, nabij de winkels, het kasteelpark Broekhuizen en uitvalswegen naar de A12. Het is tevens een goede uitvalsbasis ten opzichte van scholen, horeca, de vele wandelpaden en MTB-routes die de Utrechtse Heuvelrug biedt.

Voorwaarden verkoop (appartement 1, 2 en 4):
– Indicatie perceel 408 m2, kadastrale uitmeting op kosten verkoper.
– Verkoop is onder gunning opdrachtgever.
– Naast de reeds bestaande erfdienstbaarheden zal er een recht van overpad komen op het te verkopen perceel tbv Nudge Cycling en appartement 3.
– Naast de reeds bestaande erfdienstbaarheden zal der een erfdienstbaarheid gevestigd moeten worden voor bekabeling, nuts, en riool tbv Nudge Cycling en appartement 3.
– Verkoper zal sloopvergunning te aanvragen en starten voor eigen perceel tbv start bouw appartement 3, na succesvolle verkoop appartement 1, 2, 4.
– Koper mag geen bezwaar hebben op de bestaande bedrijfsactiviteiten (Nudge Cycling).

Kenmerken

Overdracht

Statusverkocht
Aanvaardingin overleg

Bouwvorm

Soort objectwoonhuis
Soort woningeengezinswoning
Type woningvrijstaande woning
Bouwjaar1931
Bouwvormbestaande bouw
Liggingaan drukke weg, in bosrijke omgeving

Indeling

Woonoppervlakte294 m²
Perceeloppervlakte408 m²
Overige inpandige ruimte35 m²
Inhoud1297 m³
Aantal kamers5
Aantal slaapkamers3
Aantal woonlagen3 woonlagen

Energie

EnergielabelF
Energielabel einddatum19-12-2028
Isolatiedakisolatie, dubbel glas, gedeeltelijk dubbel glas
Warmwatercv ketel
Verwarmingcv ketel, vloerverwarming gedeeltelijk

Buitenruimte

Tuinachtertuin
Hoofdtuinachtertuin
Hoofdtuin oppervlakte144 m²
Ligging hoofdtuinnoord
Achteromja
Kwaliteit tuinaan te leggen

Bergruimte

Schuur / bergingaangebouwd hout
Voorzieningenvoorzien van elektra

Parkeergelegenheid

Parkeerfaciliteitenop eigen terrein

Dak

Soort daksamengesteld dak

Overig

Permanente bewoningja
Onderhoud binnenmatig tot redelijk
Onderhoud buitenmatig tot redelijk
Huidige bestemminghoreca-wonen-waarde archeologie 4

Kadastrale gegevens

GemeenteLeersum
SectieC
Perceelnummer2740
Oppervlakte408 m²
Eigendomssituatievolle eigendom

Omgeving

Wij nodigen je graag uit voor een bezichtiging

Laat hieronder jouw gegevens achter en we nemen contact met je op om een afspraak te maken.